
9月2日(土)3日(日)現地販売会開催情報です!(^^)!
9月2日 / 9月3日
〇東京のお天気は、土曜日は晴れ、日曜日はくもり予報 〇最高気温35℃
土曜日は晴れマーク一つの晴天予報で、お出かけ日和です♪
9月に入ったとはいえ真夏日が続き、秋はまだ先のようです・・・
暑さ対策、汗対策、日焼け対策、まだまだ続きそうですね( ;∀;)
さあ!今週も弊社一丸となって現地販売会をやりますよー!
現地販売会でお会いした方だけにお伝えできる特別情報(価格相談もできるかも?)や、
特典もありますのでお気軽にお越しくださいね!
◆現地説明会のお知らせ◆
2日土曜日・3日日曜日
11時~17時現地販売会を行います。
※悪天候により、お知らせなく予定を変更する場合があります。 ご了承ください。
・新築戸建2現場
・中古マンション3現場 (NEW物件1件♪)
今週の現地販売会は5物件!です。
土地面積が驚異の25坪越え!(;゚Д゚)
憧れの庭付き新築一戸建ての登場です♪
車庫とルーフバルコニーもある広々とした内装は一見の価値ありです。
是非、他の建物と比べてみてください!
弊社限定販売なので、様々なご相談にも乗れますよ♪

公道6mと3.5m
東南角地の整形地にLDK17.9帖!
東京メトロ南北線『本駒込』駅徒歩7分
車庫含む99.55㎡の3LDK
あると嬉しい大型ルーフバルコニー付き♪
弊社限定販売で来場特典もありますので、
この機会に是非一度見に来てくださいね♪
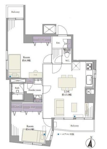
◆◇NEW物件◇◆

大江戸線・三田線『春日』駅徒歩4分
リノベ済み、この立地でこの価格!?
67.39㎡2LDK
3方角住戸
LDK15帖
6.8帖の広々居室

JR『日暮里』駅徒歩2分!
1SLDK+W
リノベーションマンション
実際に物件をご覧になってみてください!
各物件にて弊社スタッフが、皆様のご来場をお待ちしております。
※ご案内の為にスタッフが不在の場合もありますが、
お電話・メールにてご連絡を頂けますとスケジュールを調整します!
ご自宅・アパート・区分マンション・駐車場など不動産売却をお考えの場合でも、
お力になれます!住宅ローンもご相談してくださいね。
※必見※今後の未公開物件情報
文京区
☆千駄木5丁目Ⅱ
☆向丘1丁目☆ 現地説明会準備中!乞うご期待♪
☆根津
☆千駄木2丁目
☆本駒込2丁目
☆本駒込3丁目
☆向丘1丁目☆更地になりました!近隣商業地域収益物件におススメ
北区
☆西ケ原全4棟新築戸建 4区画予定間取りプランお知らせ出来ます!
大田区
☆南馬込1丁目
他にも水面下で仕入れ予定の物件が多数ありますので、
どしどしお問い合わせくださいませ~!
。:*:☆。☆━…━… …☆… …━…━☆。☆:*:。
“文京区の不動産売買”は『播磨坂不動産』におまかせください♪
※その他エリアの物件も得意ですよ~!
■購入時のご相談
■売却時のご相談
■不動産買取のご相談
■親族間売買のご相談
■住宅ローンのご相談
播磨坂不動産株式会社
住所:東京都文京区白山3-1-3 播磨坂ビル2階
電話:03-3868-8866
FAX:03-3868-8867
根津支店
住所:東京都文京区根津1-5-11
電話:03-6767-3919
Fax: 03-5932-4992

